Black Mountain
North CarolinaBlack Mountain is located 15 miles from Asheville on the eastern edge of Buncombe County. It includes an artsy and eclectic walkable downtown, including delicious restaurants and coffee shops.
Featuring safe, family friendly neighborhoods with access to Lake Tomahawk, the hiking trails of Montreat, and mountainside getaways, Black Mountain has everything to offer.
Well known Foothills Local Meats opened a farm to table restaurant and butcher shop in the area this year. It features tons of outdoor seating and room for families to gather.
A few of our favorites in the area:
Dripolator Coffee House
Open Oven Cafe
Cousins Cuban Cafe
Local shops:
Element Tree Essentials
Lotion and a candle all-in-one! Simply light the candle, dip your finger in the melted wax, and apply the warm oil to your skin.
Living in Black Mountain may include learning to coexist with bears. Check out these tips on how to be “BearWise†at home and outdoors: www.Bearwise.org
BLACK MOUNTAIN, NC 28711
Awaken to a breathtaking sunrise with long-range, southeast-facing panoramic views of the protected blue ridge mountains. This charming, witty, stylish, eccentric, and unique home welcomes you. Endless possibilities for a vacation rental, bug-out location, retreat property, weekend getaway, or homesteading. This custom-built, one-owner home has some special surprises built on historic land with a rich history which makes it a must-see! Incredible mountain views that literally can take your breath away, top-of-the-world privacy, and energy-efficient building practices are available to you, just 10 minutes to downtown Black Mountain and 30 minutes to Asheville. This mountain residence features open and functional living areas, a workshop and studio, expansive decking, a sunroom addition, a circular driveway, vaulted tongue and groove ceilings, a wood-burning stove, a clawfoot tub, and a roomy loft. Come see for yourself what perfect mountain living is like. Fresh spring water is here!
Homes for Sale in Black Mountain
334 North Fork Road # 11 $1,148,500 Subdivision: ![]() | Back to Property List | ||||||||||||||||||
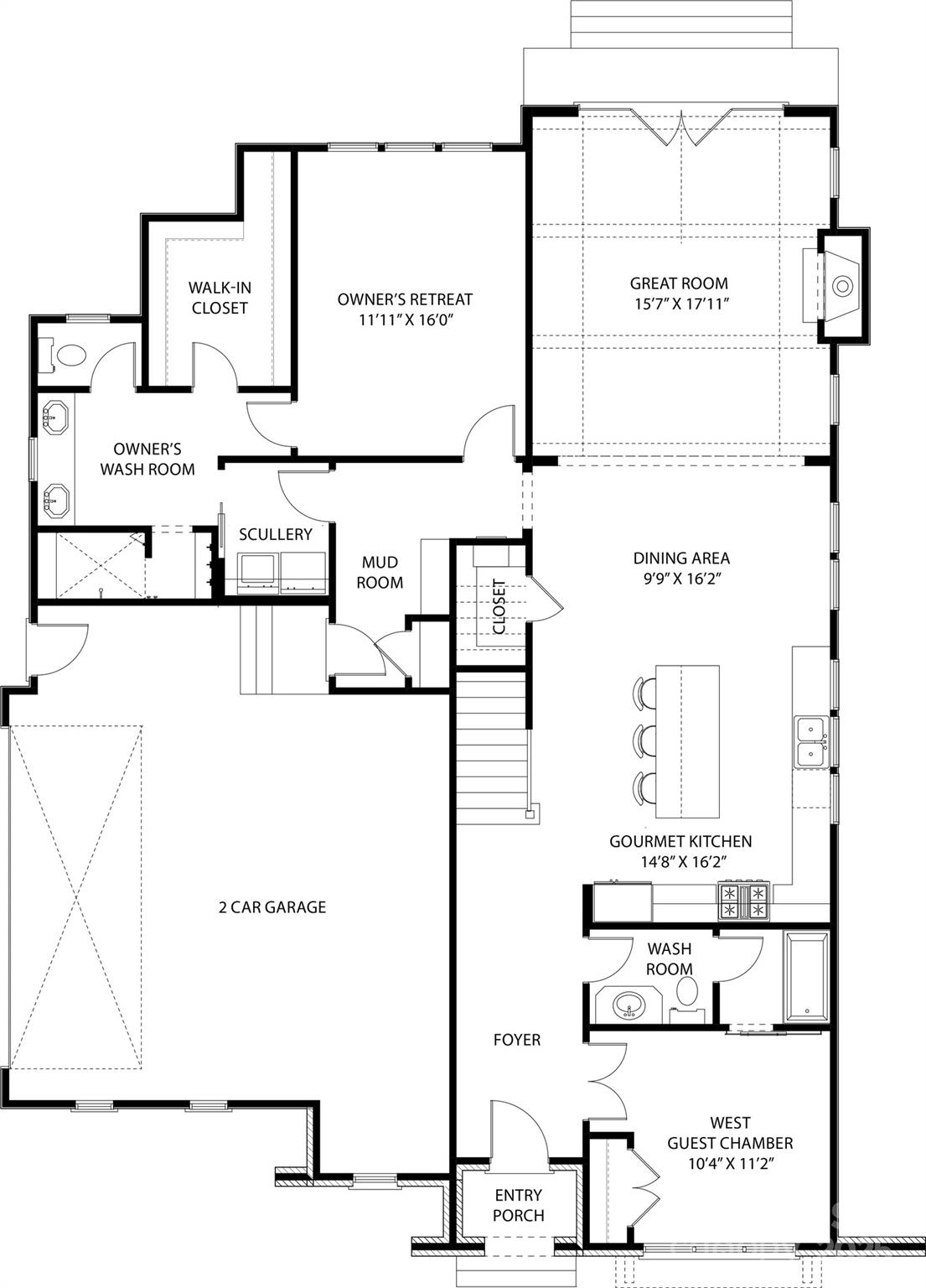
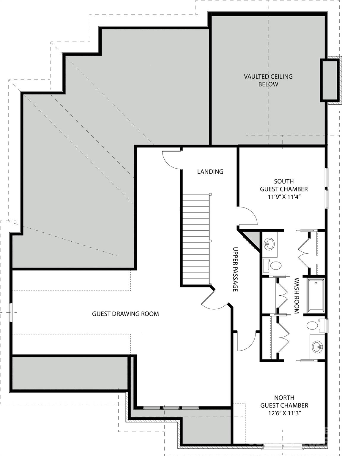
| KENSINGTON COTTAGE A study in grace and proportion, Kensington Cottage captures the enduring elegance of English design with a gentle nod to modern simplicity. Its distinctive curved gable and arched entryway evoke storybook charm, while clean lines and expansive windows create a light-filled, contemporary interior. At 2,795 square feet, this four-bedroom, three-and-a-half bath home unfolds with effortless flow between gathering spaces and private retreats. The main level offers a gracious living area anchored by a central hearth, an inviting kitchen ideal for entertaining, and a serene master suite tucked quietly to one side. Upstairs, additional bedrooms and a flexible loft provide space for family, work, or leisure. Kensington Cottage is not merely a residence — it is a refined expression of comfort and character, where timeless architecture and modern living meet in perfect balance. “Subject to final plat approval by the Town of Black Mountain. Seller reserves the right to create, retain, or grant easements affecting the subject property. CCR to be recorded prior to closing.†AN EXCLUSIVE FRUSTERIO DESIGN - CREATED IN PARTNERSHIP WITH STAG BROOK COTTAGES TO CELEBRATE CRAFTSMANSHIP, SOPHISTICATION, AND LEGACY IN EVERY DETAIL. STAG BROOK COTTAGES is a curated collection of manor-sized English-inspired cottages where timeless architecture meets modern craftsmanship, located right outside of Asheville, in Black Mountain, NC. Nestled in a tranquil setting surrounded by nature, each cottage is thoughtfully designed to reflect the charm of old-world England while embracing today’s comforts and conveniences. From distinctive façades and handcrafted details to an inviting sense of community, Stag Brook Cottages offers a place not merely to live - but to belong. - Artist’s rendering. Final design, finishes, and details may vary. - All information to be verified by buyer. - Optional elevator upgrade available on select cottages. | Basic Information
| ||||||||||||||||||
Contact An Agent: | |||||||||||||||||||
| Additional Photos: | |||||||||||||||||||
![]() | Listing courtesy of: Keller Williams Professionals - ssfitzgerald@kw.com The data relating to real estate on this Web site derive in part from the North Carolina Mountain Multiple Listing Services, Inc. IDX program. Brokers make an effort to deliver accurate information, but buyers should independently verify any information on which they will rely in a transaction. All properties are subject to prior sale, change or withdrawal. Neither Alexandra Schrank nor any listing broker shall be responsible for any typographical errors, misinformation, or misprints, and they shall be held totally harmless from any damages arising from reliance upon this data. This data is provided exclusively for consumer -- personal, non-commercial use and may not be used for any purpose other than to identify prospective properties they may be interested in purchasing. © 2026 North Carolina Mountain Multiple Listing Services, Inc. Data updated March 3, 2026. |
Sign Up for Neighborhood Market Reports
Get neighborhood market reports and new listings sent directly to your inbox.






