Oakley
North CarolinaWelcome to Oakley
Nestled on the eastern edge of Asheville, North Carolina, the Oakley neighborhood is a hidden gem that offers a unique blend of suburban tranquility and urban convenience. Known for its friendly community, scenic beauty, and vibrant local culture, Oakley is a fantastic place to explore whether you’re a local or a visitor. Here’s a guide to what makes Oakley special and what you should check out when you’re in the area.
Oakley is a charming, diverse neighborhood that has seen a resurgence in recent years due to its growing popularity among families, young professionals, and retirees. The area is characterized by its tree-lined streets, well-preserved homes, and a strong sense of community. It’s conveniently located just a few miles from downtown Asheville, making it an ideal spot for those who want to enjoy the city’s amenities while still having a peaceful retreat.

What to Do in Oakley
Start your visit at the Oakley Community Center, a hub of activity for residents. The center hosts a variety of events, classes, and activities for all ages. Whether you’re interested in joining a fitness class, participating in a craft workshop, or just learning about local events, the community center is a great place to connect with the neighborhood.
Gladheart Farm Fest Market is a vibrant collection of some of Asheville’s best farms and producers, operating every Sunday from March until December. The market is “On-Farm” and provides a wonderful opportunity to tour and participate in Asheville’s only downtown farm. Live Music, fresh food and great people make the Farm Fest Market an absolute “must see!”
- Blue Ridge Parkway Access
One of Oakley’s greatest assets is its proximity to the Blue Ridge Parkway. Just a short drive away, this scenic route offers breathtaking views of the Appalachian Mountains, hiking trails, and picnic spots. Spend a day exploring the parkway and take in the stunning natural beauty of the region.
- Local Parks
Murphy-Oakley Inclusive Playground is perfect for a family outing or a relaxing afternoon in nature. The parks in Oakley provide ample space for picnicking, jogging, and enjoying the outdoors.

Where to Eat
Peaberry is a locally owned coffee and smoothie shop in River Ridge Business Center. Their beans are locally roasted, organic, & fair trade. Their nutritious fruit smoothies are made with quality ingredients and are sure to please! Stop by before work, after a hard workout, or simply to treat yourself!
2. Hillman Beer
Hillman Beer is a small, family-owned business with locations in Asheville, NC (opened April 2017) and Old Fort, NC (opened July 2020). Currently a third location in Morganton, NC is in development. The Hillmans have come together to bring the pub style to the brewery experience. They put an emphasis on quality, service, comfort and community. HIllman Beer offers a variety of pub style options with house-made items and locally sourced ingredients. Their house made pub fare is prepared fresh daily using locally sourced ingredients. We offer a terrific variety from our signature burger, tasty reuben to our delicious kale salad!
For those who love barbecue, Black Bear BBQ offers soulful, delicious, traditional style BBQ dishes and a scrumptious variety of house-made sides. Chef-driven daily specials for the food adventurous or a variety of vegetarian options make this a place where everyone can grab a bite to eat.
Asheville’s original brewery is located just down the street from Oakley and offers something for the whole family. Enjoy live music in their tasting room or summer activities in “The Meadow”. They have volleyball courts for the adults and a playground for the kids plus multiple rotating food trucks onsite. Highland Brewing Company is the largest independent, family-owned brewery native to the Southeast.
Biryani Express is a Halal Pakistani restaurant in Asheville, North Carolina, that specializes in biryani, a flavorful rice dish made with spices, meat, and vegetables. They are known for our authentic and delicious biryani, as well as their friendly and welcoming atmosphere. They offer delivery and takeout, so you can enjoy our delicious food in the comfort of your own home.

Local Finds
Asheville Golf Course is a true gem and one of the oldest courses in Western North Carolina. Listed on the National Register of Historic Places, this classic layout was designed by famed course architect Donald Ross in 1927 and it accomplishes the difficult double task of being challenging and fun.
The front nine of the par 72, historic course spans 3,246 yards from the back tees. Its scenic design allows for the use of a driver on most holes. Meanwhile, the 3,194 back nine favors accuracy over distance. Although not long by today’s standards, the course proves length does not make a great course.
Asheville Sun Soo Martial Arts is a single, headquarter location, world-class martial arts school in Asheville, NC. They offer a rigorous, yet fun, welcoming and inspiring, martial arts practice that is focused on building a stronger body, a smarter mind and a kinder, more courageous heart for children, teens, adults and entire families!
- Asheville Mall
The Asheville Mall is only 1 mile from Oakley and offers any store you could need within the vicinity. Super Target, Whole Foods, Lowe’s Home Improvement, PetSmart, etc as well as several locally owned shops and restaurants like Little Pearl, a delicious locally owned and operated establishment with a special focus on raw-bar and seafood, killer burgers/buns and an impressive selection of craft beers, domestics and imports.
Final Thoughts
Oakley, Asheville’s charming neighborhood, is a perfect blend of tranquility and vibrancy. Whether you’re exploring local parks, savoring delicious food, or simply soaking in the community spirit, Oakley has something for everyone. Its close-knit atmosphere and proximity to Asheville’s attractions make it an ideal spot for both residents and visitors. So next time you’re in the Asheville area, be sure to take some time to explore Oakley—you won’t be disappointed!


FEATURED LISTING
ASHEVILLE, NC 28803
Homes for Sale in Oakley
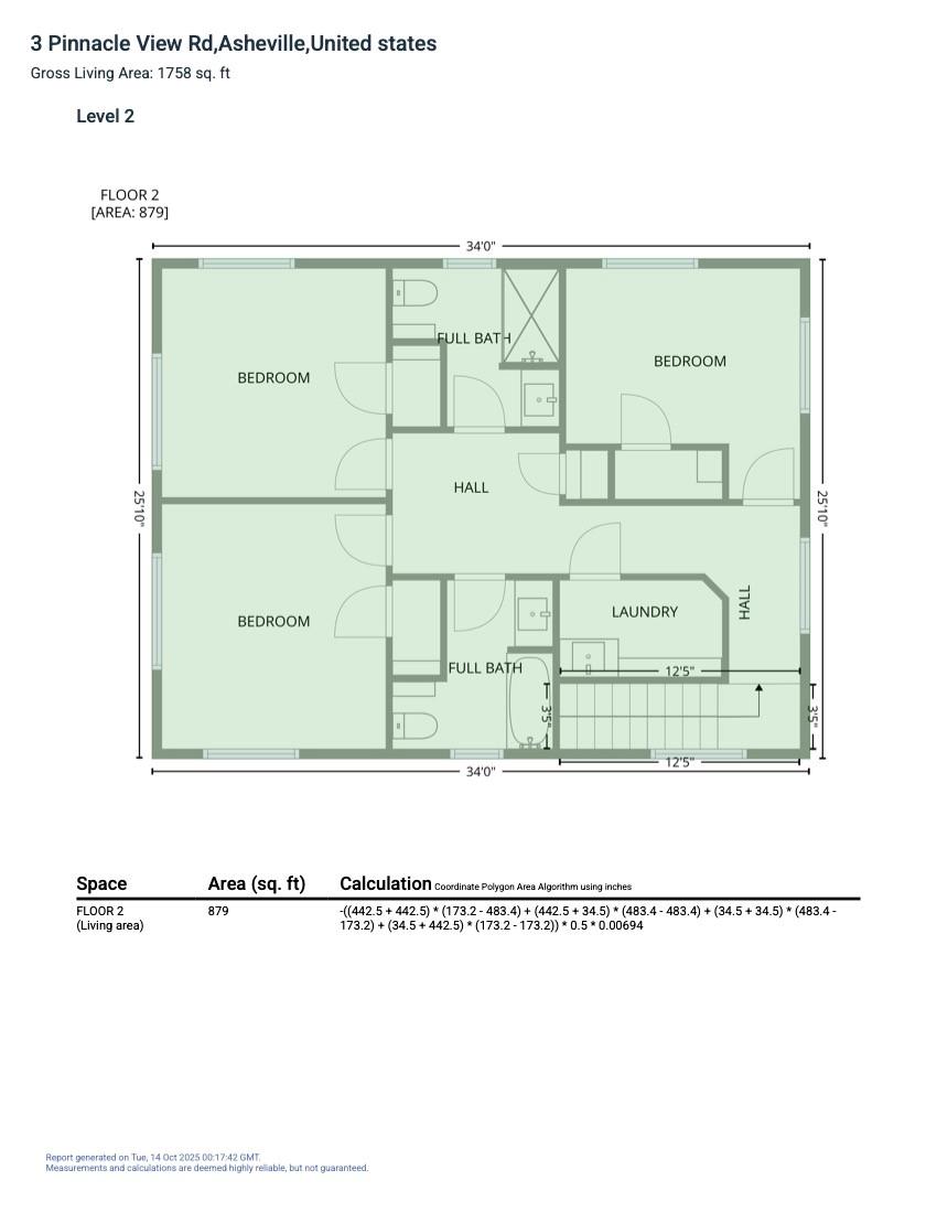
3 Pinnacle View Road $515,000 Subdivision: Oakley ![]() | Back to Property List | ||||||||||||||||||
| Brand-new construction in sought-after Oakley! This 4BR/3.5BA home features a main-level master suite, open layout, and elegant floors throughout. Thoughtfully designed with a crawlspace plus attic storage for extra space. Enjoy the covered deck and entryway, perfect for relaxing or entertaining. Three-car parking provides plenty of room for family and guests. Conveniently located close to downtown Asheville but outside city limits—offering both accessibility and lower taxes. A modern home that blends comfort, function, and style in one of Asheville’s most desirable neighborhoods. | Basic Information
| ||||||||||||||||||
Contact An Agent: | |||||||||||||||||||
| Additional Photos: | |||||||||||||||||||
![]() | Listing courtesy of: NextHome Partners - jonathan@nexthome828.com The data relating to real estate on this Web site derive in part from the North Carolina Mountain Multiple Listing Services, Inc. IDX program. Brokers make an effort to deliver accurate information, but buyers should independently verify any information on which they will rely in a transaction. All properties are subject to prior sale, change or withdrawal. Neither Alexandra Schrank nor any listing broker shall be responsible for any typographical errors, misinformation, or misprints, and they shall be held totally harmless from any damages arising from reliance upon this data. This data is provided exclusively for consumer -- personal, non-commercial use and may not be used for any purpose other than to identify prospective properties they may be interested in purchasing. © 2025 North Carolina Mountain Multiple Listing Services, Inc. Data updated November 27, 2025. |

























